Späť na prehľad Kremsbarrier 1 RN2V driven post 1 section Ground subsidence driven post 1 section matching to system KB1 RN2V for pile driving ground
Späť na prehľad Kremsbarrier 1 RN2V driven post 1 section Ground subsidence driven post 1 section matching to system KB1 RN2V for pile driving ground
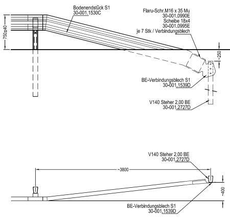
Downloads Data sheet E110 pdf | 410 KB E110 KB1 RN2V dxf | 235 KB Similar Products Kremsbarrier 1 RN2V for pile driving ground