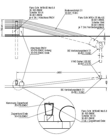
Zurück zur Übersicht Kremsbarrier 1 RN2V bikePROTECT Absenkung über 1 Feld Bodenabsenkung über 1 Feld passend zu KB1 RN2V bikePROTECT
Zurück zur Übersicht Kremsbarrier 1 RN2V bikePROTECT Absenkung über 1 Feld Bodenabsenkung über 1 Feld passend zu KB1 RN2V bikePROTECT
Downloads Typenblatt E117 pdf | 46 KB E115 KB1 RN2V bikePROTECT ABS kurz dxf | 284 KB Ähnliche Produkte KREMSBARRIER 1 RN2V bikePROTECT für rammfähigen Untergrund