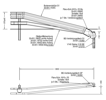
Zurück zur Übersicht Kremsbarrier 1 RH2 Absenkung über 1 Feld Bodenabsenkung über 1 Feld Passend zu KB1 RH2 für rammfähigen Untergrund
Zurück zur Übersicht Kremsbarrier 1 RH2 Absenkung über 1 Feld Bodenabsenkung über 1 Feld Passend zu KB1 RH2 für rammfähigen Untergrund
Downloads Typenblatt C103 pdf | 44 KB C103 KB1 RH2 Absenkung kurz dxf | 209 KB passende Leitschiene KREMSBARRIER 1 RH2 für rammfähigen Untergrund